桃浦智创城新建区域性医疗中心!总建面近24万㎡

2024/08/09浏览次数:

桃浦的发展规划真是势如破竹!继新建2所实验学校之后,将再度新建一所区域性医疗中心!


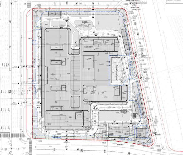
公开资料显示,该医疗中心项目建设用地范围:东至绿棠路、西至祁连山路南至武威东路、北至桃竹路。用地面积38,326㎡,新建建筑面积239,186㎡,包括地下建筑面积99,644㎡和地上建筑面积139,541㎡。地上17层,地下3层,高度80米。


从设计效果图上看,有3栋超高颜值的主楼,设计时尚、新潮,立面采用了高比例的玻璃幕墙,通透轻盈;整体绿化也非常抢眼,很有近年来火热的未来社区的科幻感。




随着两所学校和大型医院的开工建设,桃浦智创城也将补完教育的短板,其城市界面与城市功能越来越完善了,可以说,桃浦现在真是处于板块爆发期的“前夜”了!


经过5年的建设,目前长达2公里的桃浦智创城景泰路两侧中央公园、豪宅大道以及高端产业轴线已经基本建成。


桃浦智创城最先建成的商办地块——桃浦智创TOP A区建成后,凭借上海市场最高的品质标准,吸引了众多企业购置企业总部大楼,成交金额接近30亿元人民币。




目前,包括国内500强、建筑防水行业领军企业东方雨虹,国内新材料领域龙头、中国航天科技集团旗下的乐凯新材料,国家电网旗下的上海电力高压实业,李子园村属企业李园实业,以及2023年上海市最具投资潜力50佳创业企业榜单的普实医疗、旗下拥有多家上市公司的闻天下等众多高新技术企业都在智创城购置了总部独栋办公或是总部土地,办公独栋总部的成交单价区间处于上海中外环最高水平。




而原先的英雄钢笔厂地块上所打造的桃浦智创TOP B区也已经建成投入使用。




桃浦的最高地标,170米的桃浦智创TOP D区目前也已经封顶。




由临港集团操盘打造的桃浦智创TOP产业集群已经初步形成,勾勒了桃浦的全新天际线。与住宅产品一样,在商办产业方面,桃浦智创城也是通过高品质的建设标准引领,吸引优质产业的入驻。




2026年,桃浦智创城建成的优质办公空间将超过80万平方米,将会吸引超过5万优质产业办公人群入驻,持续升级区域的产业能级,以目前的住宅规划总量来看,也是远远满足不了未来市场需求的。




在值得关注的商业方面,桃浦智创城的社区配套商业桃浦湾TOPONE首发2.3万平方米的一期,已经于2023年5月开业,引入了星巴克、汉堡王、manner、瑞幸、赛百味等国际连锁品牌。除此之外,宝华紫薇花园除了自带的奢华会所之外,也会配置有社区商业、超市等设施,基本在家门口满足大部分配套需求场景。 


在大型商业方面,古浪路TOD上盖的70万方综合体目前已进入盘活程序,其一期近20万方的大型商业其实早已经封顶,将会满足桃浦智创城未来一站式的商业消费需求。


绿色生态方面,中心城区最大的开放式公共绿地总占地面积约959,105平方米的桃浦中央绿地已基本建成并陆续投入使用,普陀冰上运动中心也于2023年10月14日正式运营。桃浦中央绿地打破了国内许多公园的固有模式,通过陆桥和隧道创造出一个庞大且连续的公园,为居民创造了连续的休闲场地,通过曲线的水岸重新定义了城市与水的关系,在密集的城市背景下营造出大自然般的体验,通过一系列栖息地、水体、活动空间和展示空间来为21世纪的都市生活提供支持。




(来源:楼典)